Modelo DMC 1° Generación Sin Camisa

Es de desplazamiento positivo y se construye con engranajes rectos, su régimen de trabajo es de bajas revoluciones.
Su cuerpo, tapa y prensa estopa están construidos en fundición gris grano fino, engranajes y ejes en acero SAE 1045.
Se fabrica también en bronce antiácido, acero inoxidable y con engranajes cementados dependiendo del producto a bombear, para brindar durabilidad.
Es una bomba diseñada con espesores sobredimensionados, lo que la convierten en un producto muy rentable, debido que admite varias reparaciones en las cuales se garantiza mantener el 100% de su calidad original durante un período prolongado.
Se accionan por medio de motores eléctricos con acoplamiento mediante polea o reductor.
Estas bombas son reversibles, permitiendo invertir el sentido de giro, con lo que la boca de aspiración, se transforma en boca de impulsión y viceversa.
Es una bomba apta para productos que no necesiten espuma. Recomendada para líquidos que, por su naturaleza, son lubricantes viscosos y ligeros. Puede bombear petróleo y sus derivados, pinturas, aceites, grasas, dulces, jabones, detergentes, shampoo, chocolate, ácido residual, cebos, asfaltos, abrasivos, colas, masillas.
Accesorios opcionales: Sistema bypass, válvula de seguridad, válvulas esféricas, tapa de calefacción, filtro con malla protectora, carro de traslado, sistemas de reducción.

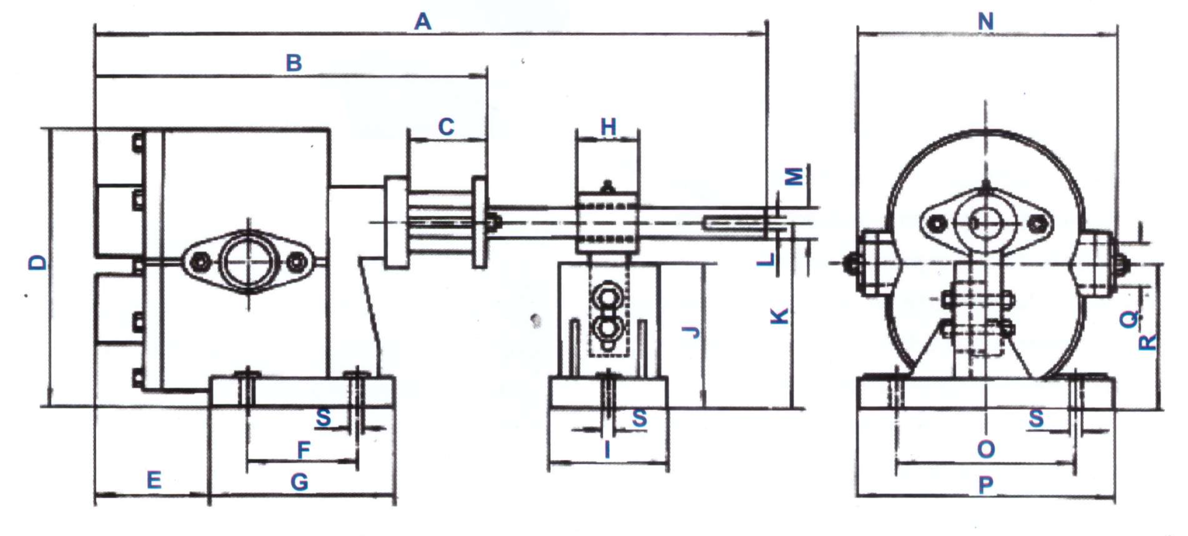
A B C D E F G H I J K L M N O P Q R S
1½" 575 270 60 240 90 90 150 65 85 130 160 8 30 240 167 232 1½" 125 13
2" 595 290 60 240 130 90 150 65 85 130 160 8 30 240 167 232 2" 125 13
3" 615 325 60 240 165 90 150 65 85 130 160 8 30 240 167 232 3" 125 13
4" 690 470 60 330 100 122 160 80 60 170 240 10 40 285 221 265 4" 180 17
Imagen
Fluido SAE 30 1 BAR 2 BAR 3 BAR 4 BAR 5 BAR R.P.M
1½" Motor HP 4 4 5,5 5,5 7,5 350
Litros/h 10000 10000 10000 10000 10000
2" Motor HP 5,5 5,5 5,5 5,5 7,5 350
Litros/h 15000 15000 15000 15000 15000
3" Motor HP 10 10 10 12,5 15 350
Litros/h 26000 26000 26000 26000 26000
4" Motor HP 20 20 20 20 20 350
Litros/h 45000 45000 45000 45000 45000